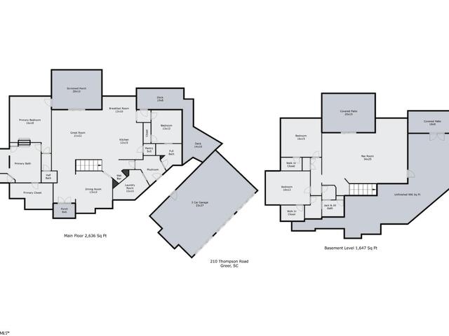
210 Thompson Road
Price$ 1,275,000
StatusContingency Contract
Bedrooms4
Full Baths3
Half Baths1
Sq Ft4200-4399
MLS#1580064
Area031-Woodruff Rd/I85
SubdivisionNone
CountyGreenville
Acres2.70
Approx Age11-20
# of Stories1+Basement
DescriptionA rare blend of privacy, craftsmanship and convenience, this ONE OWNER custom home by Peery Homes sits on 2.7 beautifully wooded acres in a prime location just minutes from Five Forks Simpsonville and Greer. Zoned for award-winning schools and FREE FROM HOA restrictions, the setting offers the feel of a secluded mountain lodge while remaining close to everyday amenities. The thoughtfully designed floor plan is both hard to find and easy to love. The main level features true one-level living with an open layout ideal for everyday comfort and entertaining with a center wood-burning fireplace with floor to ceiling stone in the Great Room. This area opens up to the kitchen with its center island, furniture-style cabinetry, gas cooktop and huge walk in pantry. The primary suite is a standout, offering a two-sided gas fireplace and a spa-like bathroom with a soaking tub, dual vanities, a spacious walk-in shower with dual entry, and a generous walk-in closet. An additional guest suite on the main level provides flexibility for visitors or multi-generational living. And for guests there’s a powder room as well. The walk-out lower level expands the home’s living space with a sprawling recreation area highlighted by custom stained concrete floors, two bedrooms with generous closets connected by a true Jack-and-Jill bath, and nearly 1,000 square feet of unfinished storage, perfect for seasonal items, a workshop or future expansion with direct access to the rear grounds and a patio. The outdoor living is just as impressive. A charming stone-paver breezeway leads to a wrap-around deck and a stunning vaulted screened porch featuring one of the home’s three fireplaces, an ideal spot to relax and enjoy the peaceful surroundings. Functionality shines with a dedicated mudroom and laundry room with tiled floors and seamless access through the breezeway to the three-car garage. This is a home that offers space, privacy, and exceptional design, without sacrificing location or convenience.
Room Dimensions
Master Bed Room Size is 16x18
Dining Room Size is 13x12
Bedroom Room 2 Size is 16x15
Bedroom Room 3 Size is 16x13
Bedroom Room 4 Size is 13x13
Breakfast Room Size is 12x10
Great Room Size is 21x22
Bonus Room Size is 34x25
Kitchen Size is 12x16
Features
Style : Craftsman
Basement : Full,Full Finished,Interior Access,Walkout
Roof : Architectural
Interior Features : Bookcase,Cable Available,Ceiling 9ft+,Ceiling Fan,Ceiling Cathedral/Vaulted,Ceiling Smooth,Countertops Granite,Open Floor Plan,Window Trmnts-Some Remain,Tub Garden,Walk In Closet,Ceiling – Coffered,Pantry – Walk In
Master Bedroom Features :
Specialty Room : Bonus Room/Rec Room,Breakfast Area,Laundry,Other/See Remarks,Unfinished Space,Workshop
Appliances : Dishwasher,Disposal,Dryer,Stand Alone Range-Gas,Refrigerator,Washer,Microwave-Built In
Fireplace : Double Sided/See Through,Gas Logs,Outdoor,Wood Burning Fireplace
Lot Description : Level,Some Trees,Underground Utilities,Wooded
Heating : Forced Air,Heat Pump,Natural Gas
Cooling : Central Forced,Electric
Floors : Carpet,Ceramic Tile,Concrete,Wood
Water : Public
Sewer : Septic
Water Heater : Gas,Tankless
Foundation : Basement
Storage : Basement,Garage
Garage : Assigned Parking 3+ Sp,Door Opener,Driveway Parking,Key Pad Entry,Side/Rear Entry,Workshop,Yard Door
Driveway : Extra Pad,Paved Concrete
Exterior Finish : Hardboard Siding,Stone
Elementary School : Oakview
Middle School : Riverside
High School : Mauldin
Listing courtesy of Morrell, Melissa - BHHS C Dan Joyner - Midtown  -  864-242-6650
The data on this website relating to real estate for sale comes from the IDX Program of the Greater Greenville Association of Realtors.
All information is believed accurate but not guaranteed. The properties displayed may not be all of the properties available through the IDX Program. Any use of this site other than by potential buyers or sellers is strictly prohibited.
All information is believed accurate but not guaranteed. The properties displayed may not be all of the properties available through the IDX Program. Any use of this site other than by potential buyers or sellers is strictly prohibited.






